Gewerbe

Gewerbefläche ca. 180 m², vielseitige Nutzung

zu vermieten

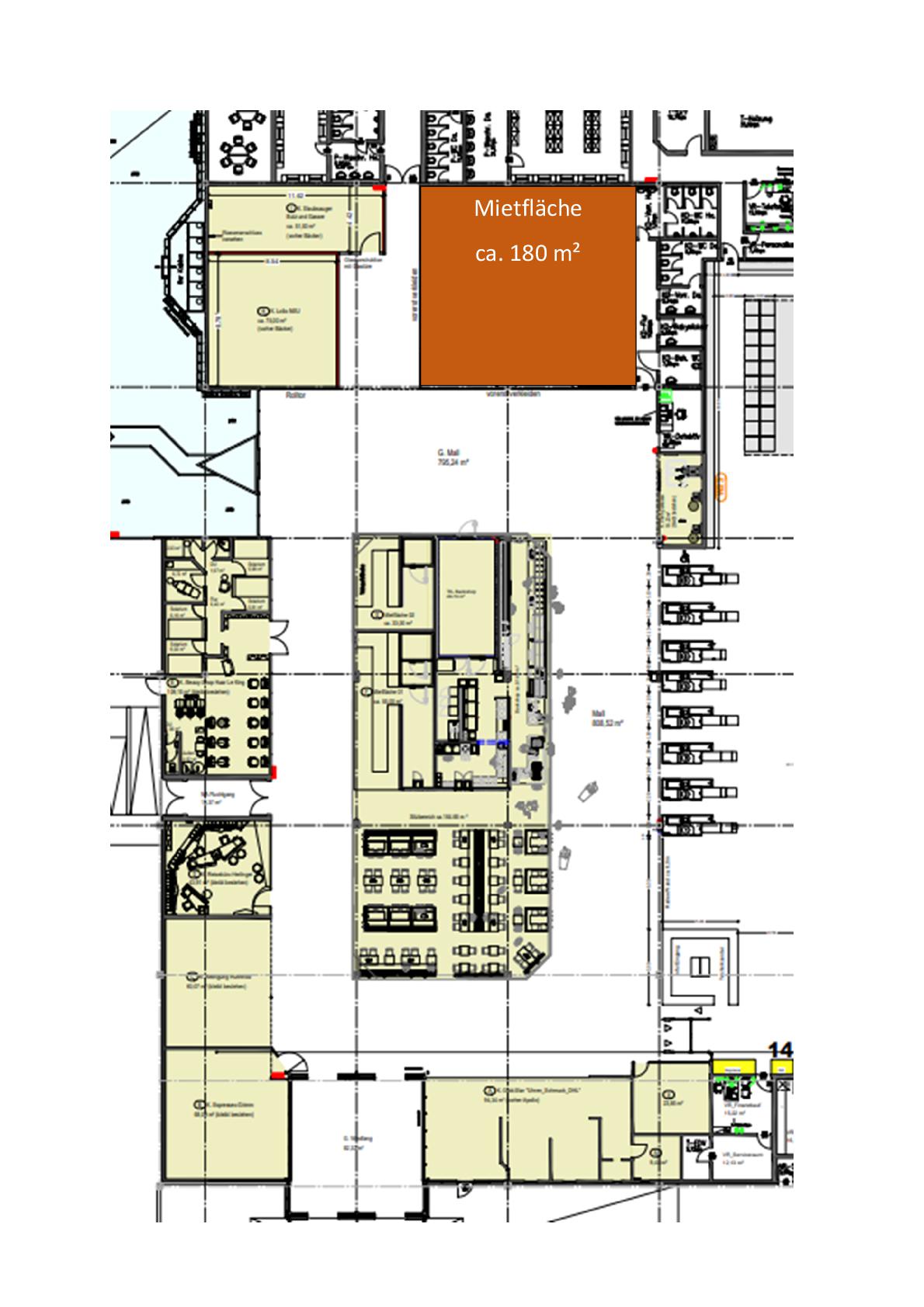
Gewerbefläche Top Lage in Pentling

Hölkeringer Straße 20, 93080 Pentling Zu vermieten ist eine Gewerbefläche mit ca. 180 m² im Mall-Bereich des komplett neu renovierten V-Markt in Pentling. Aktuell dient die Fläche als Ausstellungfläche.

Interesse geweckt?

Rufen Sie uns an unter 08341 / 807336


E-Mail*

Ihre Idee wird wahr!

Werden Sie Teil des V-Markt Pentling

Die Gewerbefläche mit ca. 180 m² befindet sich in Top Lage im Mall-Bereich des 2021 eröffneten V-Markt Pentling. Die Fläche ist vielseitig nutzbar und soll das bestehende Gesamtkonzept im Objekt (Verbrauchermarkt; KIK; Tedi; Reisebüro; Reinigung; Lotto; Gold Star Schmuck; Friseur; Staubsaugerservice; Subway; Döner, Sparkasse; Brothaus mit Cafè) abrunden.

Objektbeschreibung

Objektdaten

  • Fläche ca. 180 m²
  • provisionsfrei
  • Bezug: ab sofort
  • LED-Beleuchtung
  • 480 Stellplätze am Objekt
  • hohe Kundenfrequenz
  • Besichtigung: nach Vereinbarung
  • Online-ID: 233gl5r

Ausstattung und Merkmale

  • frei
  • provisionsfrei
  • barrierefrei
  • Stellplätze
  • renoviert November 2021
Die Lage

Mit dem Objekt interagieren

Das Objekt kann auf Immowelt angesehen werden oder als Exposé gedruckt werden.